Tủ sấy đối lưu cưỡng bức 108L
Model: UF110plus
Hãng: Memmert
Xuất xứ: Đức
Bảo hành 12 tháng

Thông số kỹ thuật
Nhiệt độ
- Phạm vi nhiệt độ làm việc: ít nhất 5 (UN / UNplus / UNm / UNmplus) hoặc 10 (UF / UFplus / UFm / UFmplus) trên nhiệt độ môi trường đến +300 ° C
- Cài đặt nhiệt độ chính xác: lên tới 99,9 ° C: 0,1 / từ 100 ° C: 0,5
- Cài đặt phạm vi nhiệt độ: +20 đến + 300 ° C
- Cảm biến nhiệt độ: 2 cảm biến Pt100 DIN Class A trong mạch 4 dây để theo dõi lẫn nhau, tiếp quản các chức năng trong trường hợp có lỗi
Công nghệ điều khiển
- ControlCOCKPIT: TwinDISPLAY. Bộ điều khiển vi xử lý kỹ thuật số PID đa chức năng thích ứng với 2 màn hình màu độ phân giải cao.
- Cài đặt ngôn ngữ: Đức, Anh, Tây Ban Nha, Pháp, Ba Lan, Séc, Hungary
- Hẹn giờ: Bộ đếm ngược kỹ thuật số với cài đặt thời gian đích, có thể điều chỉnh từ 1 phút đến 99 ngày
- Chức năng cân bằng nhiệt: điều chỉnh phân phối hiệu suất làm nóng của mạch sưởi trên và dưới từ -50% đến + 50%
- Điểm đặt chức năng chờ: thời gian xử lý không bắt đầu cho đến khi đạt được nhiệt độ cài đặt
- Hiệu chuẩn: ba giá trị nhiệt độ có thể lựa chọn tự do
- Các thông số có thể điều chỉnh: nhiệt độ (Celsius hoặc Fahrenheit), tốc độ quạt, vị trí van không khí, thời gian chương trình, múi giờ, mùa hè / mùa đông
Thông gió
- Quạt: lưu thông không khí cưỡng bức bằng tuabin khí yên tĩnh, có thể điều chỉnh 10% cho từng phân đoạn
- Hỗn hợp không khí sạch: điều chỉnh hỗn hợp không khí sạch được làm nóng trước bằng cách điều khiển vạt không khí trong 10% cho từng phân đoạn riêng lẻ
- Lỗ thông hơi: kết nối thông hơi với nắp bộ hạn chế
Truyền dữ liệu
- Tài liệu: chương trình được lưu trữ trong trường hợp mất điện
- Lập trình: Phần mềm AtmoCONTROL trên thanh USB để lập trình, quản lý và truyền chương trình qua giao diện Ethernet hoặc cổng USB
Sự an toàn
- Kiểm soát nhiệt độ: TB giới hạn nhiệt độ cơ học, bảo vệ cấp 1 theo DIN 12880 để tắt hệ thống sưởi khoảng. 20 ° C trên nhiệt độ danh nghĩa
- Kiểm soát nhiệt độ: màn hình quá nhiệt TWW, lớp bảo vệ 3.1 hoặc bộ giới hạn nhiệt độ có thể điều chỉnh TWB, lớp bảo vệ 2, có thể lựa chọn trên màn hình
- AN TOÀN tự động: tích hợp thêm màn hình "ASF", tự động theo giá trị điểm đặt ở phạm vi dung sai đặt trước, báo động trong trường hợp quá nhiệt độ hoặc nhiệt độ, hệ thống sưởi được tắt trong trường hợp quá nhiệt độ
- Hệ thống tự động chẩn đoán: để phân tích lỗi
- Báo động: hình ảnh và âm thanh
Tiêu chuẩn thiết bị
- Cửa: cửa thép không gỉ cách nhiệt hoàn toàn với khóa 2 điểm (khóa cửa nén)
- Nội thất: 2 lưới thép không gỉ, điện phân
- Chứng nhận hiệu chuẩn hoạt động: Hiệu chuẩn ở + 160 ° C
Nội thất thép không gỉ
- Nội thất: nội thất dễ lau chùi, được làm bằng thép không gỉ, được gia cố bằng cách kéo sâu với hệ thống sấy diện tích lớn và được bảo vệ ở bốn phía
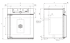
- Thể tích: 108L
- Kích thước: w (A) x h (B) x d (C): 560 x 480 x 400 mm (d ít hơn 39 mm đối với quạt)
- Tối đa số lượng kệ: 5
- Tối đa tải buồng: 175 kg
- Tối đa tải mỗi kệ: 20 kg
Kết cấu vỏ thép không gỉ
- Kích thước: w (D) x h (E) x d (F): 745 x 864 x 584 mm (tay nắm cửa d + 56mm)
- Thân: thép mạ kẽm phía sau
Dữ liệu điện
- Tải điện áp: 230 V, khoảng 50/60 Hz. 2800 W
- Tải điện áp: 115 V, khoảng 50/60 Hz. 1800 W
Điều kiện môi trường xung quanh
- Cài đặt: Khoảng cách giữa tường và phía sau thiết bị phải tối thiểu 15 cm. Khoảng hở từ trần nhà không được nhỏ hơn 20 cm và khe hở bên từ tường hoặc các thiết bị gần đó không được nhỏ hơn 5 cm.
- Độ cao cài đặt: tối đa. 2.000 m trên mực nước biển
- Nhiệt độ môi trường: +5 ° C đến +40 ° C
- Độ ẩm rh: tối đa. 80%, không ngưng tụ
- Loại quá áp: II
- Mức độ ô nhiễm: 2
Cấu hình cung cấp
- Tủ sấy: 1 chiếc
- Tài liệu hướng dẫn sử dụng: 1 bản
- Phụ kiện đi kèm
------------------------------------------------------------------------------------------------------------
Phân phối thiết bị ngành Dược Memmert tại Việt Nam


Công Ty TNHH Đầu Tư Phát Triển Thương Mại An Hòa
Hotline: Mr.LINH – 0862.191.383
Email: levanlinh.anhoaco@gmail.com
Hân hạnh được phục vụ quý khách hàng trong những dự án sắp tới!